尋夢新聞LINE@每日推播熱門推薦文章,趣聞不漏接❤️
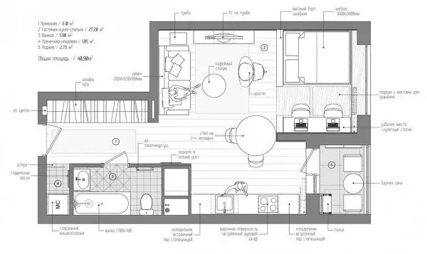
活力清新小公寓設計
淡色木質與灰色清爽簡單
小面積的亮色點綴空間,充滿活力
小空間里避免了用厚實的牆壁做區域分隔▲
半開放式的空間將臥室安放於客廳一角▲
同時還是一個工作室▲
陽台還擺放了一張小餐桌陽光明媚的早晨,這樣迎接美好的一天。▲
版權歸原創者所有,如有侵權請及時聯繫!
活力清新小公寓設計
淡色木質與灰色清爽簡單
小面積的亮色點綴空間,充滿活力
小空間里避免了用厚實的牆壁做區域分隔▲
半開放式的空間將臥室安放於客廳一角▲
同時還是一個工作室▲
陽台還擺放了一張小餐桌陽光明媚的早晨,這樣迎接美好的一天。▲
版權歸原創者所有,如有侵權請及時聯繫!
面積:70㎡ 風格:北歐 雖然是小戶型卻絲毫不局促。開放式格局、緊湊的 [閱讀更多]
這是一套北歐風格的裝修案例,設計師從簡約時尚出發,拋卻繁瑣的裝飾,為業 [閱讀更多]
98㎡的兩居室房子,面積不大不小,一家三口夠住了。為了給家人一個自然、 [閱讀更多]
▲整個客廳以簡約舒適的暖色調為主,在灰色與木色搭配下,結合一盞藍色布藝 [閱讀更多]
說 明 戶型:三室 面積:120㎡ 造價:55萬元 兩位自主創業的80 [閱讀更多]
關注微信公眾號:jiasjmt一起學習更多裝修技巧與案例! 想要免費設 [閱讀更多]
▲ 點擊上方藍字,關注最前沿設計微刊 尊貴熱線:400-639-997 [閱讀更多]
關注「公寓次世代」,關注中國存量房市場未來 丨來源:一起設計 LOFT [閱讀更多]
極致簡約而又頗具藝術格調的北歐風,幾乎受到了大多數年輕人的青睞。它的氣 [閱讀更多]
本案為新亞洲風格,通過創新將現代元素和傳統元素結合;以現代人的審美需求 [閱讀更多]
家裝室內設計 ,每日搜集分享國內外最前沿的家裝設計、施工、建材等內容, [閱讀更多]
坐標大連,使用面積107㎡的兩居室,我們家的第一套房子。交房前就開始研 [閱讀更多]