最難戶型也能實用 90平現代簡約兩居

尋夢新聞LINE@每日推播熱門推薦文章,趣聞不漏接❤️

加入LINE好友

點上方藍字可關注 微信號:裝修33天

最難戶型也能實用 90平現代簡約兩居 家居 第1張

▲建築面積90平,總造價30萬,將「手槍」戶型打造成超強收納、超高顏值、超大沙發的居家空間

最難戶型也能實用 90平現代簡約兩居 家居 第2張

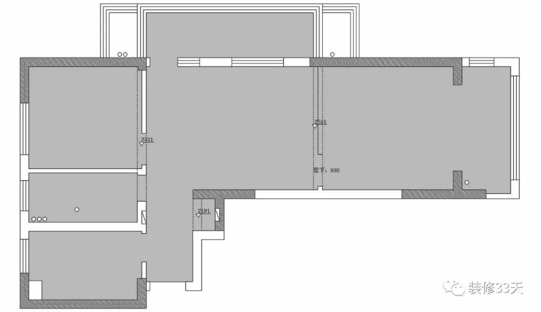
▲ 平面結構圖

最難戶型也能實用 90平現代簡約兩居 家居 第3張

▲ 平面布置圖

最難戶型也能實用 90平現代簡約兩居 家居 第4張

▲客餐廳以簡約的灰白色搭配原木做基礎色調,整個空間乾淨明快,又不失自然的質樸氣息

最難戶型也能實用 90平現代簡約兩居 家居 第5張

▲將陽台納入客廳,現場製作長達6米,寬83公分的超大沙發,在建築面積只有90㎡的公寓房里成了奢侈品

最難戶型也能實用 90平現代簡約兩居 家居 第6張

▲將電視背景與餐桌兼島台合二為一,內部暗藏儲物櫃,一箭四雕,是本案的亮點

最難戶型也能實用 90平現代簡約兩居 家居 第7張

▲餐廳設計一組30公分的造型餐邊櫃,既滿足餐廳區域的儲物功能,又裝飾了客餐廳區域的視覺效果

最難戶型也能實用 90平現代簡約兩居 家居 第8張

▲桌面下方也摒棄常規桌腿的支撐設計,而是採用或封閉或開敞的造型穿插的造型櫃設計

最難戶型也能實用 90平現代簡約兩居 家居 第9張

▲客廳望向入戶視角

最難戶型也能實用 90平現代簡約兩居 家居 第10張

▲進門左側塗鴉谷倉門為廚房門片,成為入戶後的第一道風景線

最難戶型也能實用 90平現代簡約兩居 家居 第11張

▲U型廚房,原木櫥櫃搭配爵士白的基底,沿襲整體空間的乾淨清爽

最難戶型也能實用 90平現代簡約兩居 家居 第12張

▲廁所幹濕分離設計,墨綠色基調與素淨的白結合在一起,運用藤編與木紋元素讓人倍感清新

最難戶型也能實用 90平現代簡約兩居 家居 第13張

▲次臥以溫潤木色和純淨白色為基調,充滿溫馨和舒適,所有木作均為木工師傅現場製作

最難戶型也能實用 90平現代簡約兩居 家居 第14張

▲將書桌與床頭結合,呈現架空的設計,現代北歐的創意透明椅,帶來一絲深沉,含蓄的色調

最難戶型也能實用 90平現代簡約兩居 家居 第15張

▲主臥納入陽台增加使用面積,採用魚骨拼木地板,對比牆面的簡潔乾淨,空間多了幾分溫暖

最難戶型也能實用 90平現代簡約兩居 家居 第16張

▲主臥床頭背景採用木紋與留白結合,縱向分割讓牆面更具層次感

最難戶型也能實用 90平現代簡約兩居 家居 第17張

▲床尾一整排頂天立地的衣櫃,滿足空間的儲物功能,灰調在留白空間的映襯下更顯高挑與穩重感

設計 | 會築空間設計(南京)

微信:13914784029

後台回復「會築」可以看更多作品

媒體轉載請註明裝修33天並保留設計師聯繫方式

歡迎業主、設計師、裝修公司免費投稿照片

裝修33天商務合作微信:king194316

松爺店鋪掌櫃微信:yejia1702

會築空間設計其他作品推薦,點擊下圖查看

最難戶型也能實用 90平現代簡約兩居 家居 第18張

配色好看,文藝小青年清新二居

最難戶型也能實用 90平現代簡約兩居 家居 第19張

裝修33天

實用裝修指南

關注

裝修33天 ? 實用裝修指南

喜歡我們的文章就隨手轉發到您朋友圈吧