83平的簡約風小戶型三居室,捨棄餐廳改出臥室

尋夢新聞LINE@每日推播熱門推薦文章,趣聞不漏接❤️

加入LINE好友

83平的簡約風小戶型三居室,捨棄餐廳改出臥室 家居 第1張

關注微信公眾號:jiasjmt一起學習更多裝修技巧與案例!

想要免費設計和了解更多裝修知識,就點我吧!

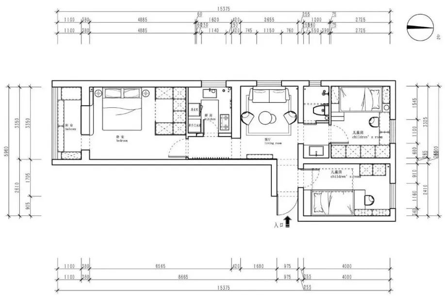
今天分享的是一套建築面積83平米的簡約風小戶型三居室案例,原本是二房的戶型,設計師為了滿足屋主一家的居住需求,把餐廳改成了臥室,客餐廳結合起來,構造出了這樣一個緊湊而又實用的小窩。

83平的簡約風小戶型三居室,捨棄餐廳改出臥室 家居 第2張

平面布置圖

83平的簡約風小戶型三居室,捨棄餐廳改出臥室 家居 第3張

這套案例的戶型是手槍型的,入戶的玄關走廊比較窄,所以設計師選擇了迷你的窄鞋櫃,搭配上方的創意掛鉤,也能滿足日常的使用需求。

83平的簡約風小戶型三居室,捨棄餐廳改出臥室 家居 第4張

走過玄關之後就到了客廳空間,沙發背靠著窗戶,兩側還做了置物架輔助收納,在側方的牆面做個創意的牆貼裝飾,增加趣味性。

83平的簡約風小戶型三居室,捨棄餐廳改出臥室 家居 第5張

隱藏在沙發邊上的小櫃子其實就是餐廳的餐桌,可折疊的餐桌是很適合小戶型的,把客餐廳放在同一個空間也更為緊湊實用。

83平的簡約風小戶型三居室,捨棄餐廳改出臥室 家居 第6張

通往廚房和主臥的走廊過道,牆面做了木質造型,餐椅也被掛在了牆上,充分的利用小戶型的每一個空間。

83平的簡約風小戶型三居室,捨棄餐廳改出臥室 家居 第7張

主臥室和陽台連通了起來,做個半牆作為隔斷。床頭背景牆刷成了棕褐色,搭配深木色的床和床頭櫃、素雅的床品,顯得端莊而又優雅舒適。

83平的簡約風小戶型三居室,捨棄餐廳改出臥室 家居 第8張

陽台的面積雖然不大,但設計師沒少在收納上花心思,靠窗的一排開放式地櫃,側方也做了儲物櫃,長木塊搭配文化磚的設計讓陽台更顯自然、輕鬆。

83平的簡約風小戶型三居室,捨棄餐廳改出臥室 家居 第9張

女孩房的床和書桌齊高,利用床底的空間來做收納,另一側也做了到頂的衣櫃。粉色調的女孩房給人一種浪漫、可愛的感覺。

83平的簡約風小戶型三居室,捨棄餐廳改出臥室 家居 第10張

男孩房的配色就會比較簡約一些,以原木風為主搭配藍色調的設計,同樣把床給抬高,底部空間被充分利用起來做收納。

83平的簡約風小戶型三居室,捨棄餐廳改出臥室 家居 第11張

廁所的內部空間比較迷你,所以也沒做幹濕分離的設計,在角落里做個弧形的洗手台,馬賽克瓷磚和六邊仿古磚的結合,帶來別樣的美感。

(我們致力於保護作者版權,部分作品來自互聯網.無法核實真實出處,如涉及侵權,請直接聯繫小編刪除.謝謝!)

365天無休,全網搜羅,裝修美圖、案例、知識每天更新!加微信:qijiaminmin,或掃描下方二維碼,進同城業主交流群,聊裝修!

83平的簡約風小戶型三居室,捨棄餐廳改出臥室 家居 第12張

戳左下角「閱讀原文」,搶0元設計名額!