76平的簡約風二居室,半開放式廚房寬敞又好看

尋夢新聞LINE@每日推播熱門推薦文章,趣聞不漏接❤️

加入LINE好友

76平的簡約風二居室,半開放式廚房寬敞又好看 家居 第1張

大申家居

讓你秒變裝修達人!

76平的簡約風二居室,半開放式廚房寬敞又好看 家居 第2張

小編今天分享的是一套建築面積76平米的簡約風小戶型二居室案例,整個房子的色調偏向於素雅,也顯得更為簡潔。小編覺得設計得比較好的就是這個半開放式廚房,把客廳、餐廳的一部分都連起來,顯得格外的寬敞。

76平的簡約風二居室,半開放式廚房寬敞又好看 家居 第3張

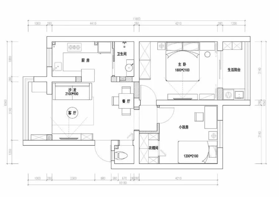
平面布置圖

76平的簡約風二居室,半開放式廚房寬敞又好看 家居 第4張

入戶沒有玄關走廊的戶型,一進門就到了客廳,灰色系的布藝沙發集合灰綠色的牆面,在木色的茶幾和木地板的襯托下,顯得格外的素雅。

76平的簡約風二居室,半開放式廚房寬敞又好看 家居 第5張

電視背景牆被利用起來改成了收納款式,客廳外的小陽台也被改成了一個榻榻米地台,側方牆面和電視背景牆結合,整體感強又能夠有更多的儲物空間。

76平的簡約風二居室,半開放式廚房寬敞又好看 家居 第6張

從客廳看往餐廳,沙發背景牆留空了一部分,把廚房變成了一個半開放式空間,客餐廳的頂部天花板連起來,石膏線和廚房門框相呼應,顯得簡潔而又大方。

76平的簡約風二居室,半開放式廚房寬敞又好看 家居 第7張

餐桌椅被放在了角落里,原木風的餐桌椅結合一個壁龕和洞洞板的組合式設計,再加上一些隔板,給餐廳提升了一些儲物空間,還非常好看。

76平的簡約風二居室,半開放式廚房寬敞又好看 家居 第8張

廚房內部選擇了灰色、黑色、白色和木色的結合,一側的牆面上用隔板來代替吊櫃,既有收納又不會顯得那麼壓抑。

76平的簡約風二居室,半開放式廚房寬敞又好看 家居 第9張

主臥室的牆面是刷成了墨綠色,和床品相互呼應,再搭配一個簡約款式的裝飾畫,顯得更為清新、自然,床頭用梳妝台代替床頭櫃,更為實用。

76平的簡約風二居室,半開放式廚房寬敞又好看 家居 第10張

兒童房內擺放了一個迷你的兒童床,加上床幔更有公主房的感覺,床頭櫃和小書桌擺放在側方,床也靠著牆,可以留出更多的活動空間。

76平的簡約風二居室,半開放式廚房寬敞又好看 家居 第11張

廁所的馬桶區域被單獨隔離開來,放在餐廳側方的一個小空間內,馬桶上方加上隔板架,增強收納功能。

76平的簡約風二居室,半開放式廚房寬敞又好看 家居 第12張

洗手台和淋浴區是做在了一起,灰色與木色的結合,淋浴區內一個六邊磚背景牆顯得更有格調感,用浴簾來代替玻璃隔斷,也更為寬敞一些。

(我們致力於保護作者版權,部分作品來自互聯網.無法核實真實出處,如涉及侵權,請直接聯繫小編刪除.謝謝!)

大家都在關注▼

衣櫃收納|廁所收納

臥室|兒童房|衣帽間

幹濕分離|老房爆改

【福利】後台回復關鍵詞看合集▼

小戶型|LOFT|北歐|中式

日式| 收納|改造

歡迎投稿:[email protected]

76平的簡約風二居室,半開放式廚房寬敞又好看 家居 第14張

76平的簡約風二居室,半開放式廚房寬敞又好看 家居 第15張